Rent (monthly)
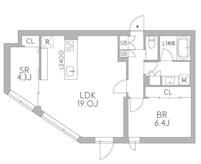
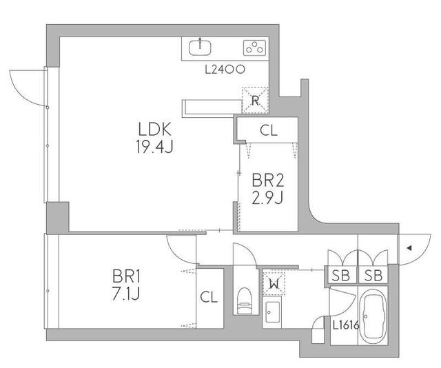
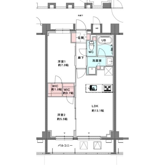
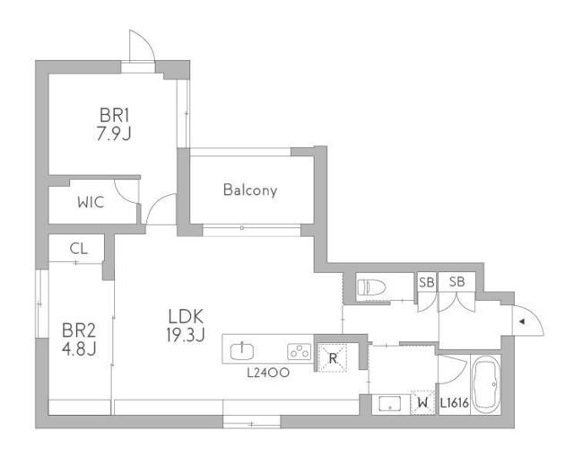
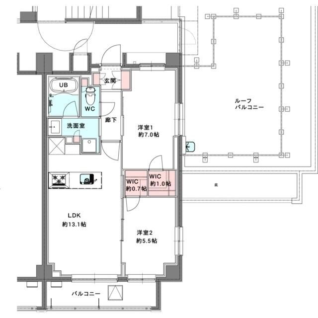
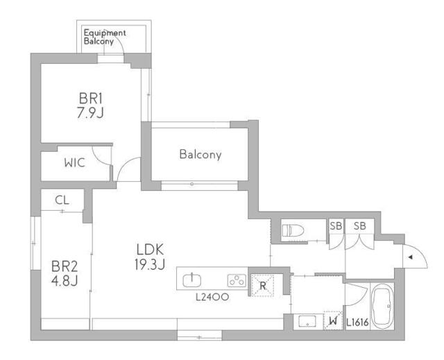
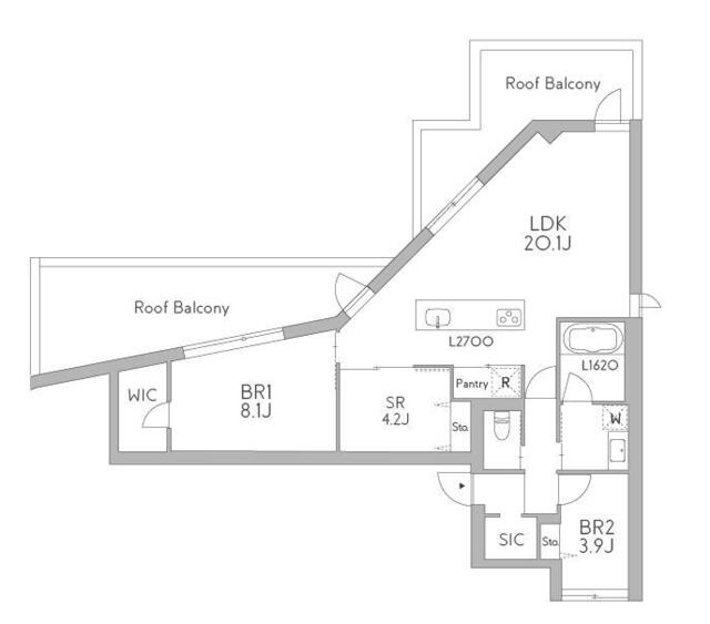
2LDK
Layout
Area
1
Floor
2026
Built in
Late Mar 2026
Move-in Status
Mansion
Building Type
Reinforced Concrete
Structure
2025/12/13
Added
2026/3/5
Last Updated
Nearby Stations
Nakano Station
- 8 mins walk to Nakano (Tokyo Metro Tozai Line)
Nakano Station
- 15 mins walk to Nakano (JR Chuo Line (Express))
Kouenji Station
- 22 mins walk to Kouenji (JR Chuo Line (Express))
Popular — book a viewing soon
Monthly Costs
Rent
Maintenance
One-time Move-in Costs (estimated)
Pro-rated Rent
Pro-rated Maintenance Fee
Deposit
Key Money
Lock Change Fee
Guarantor Fee
Fire Insurance Fee (estimated)
Agent Fee (Commission)
Contract Details
Fixed Term Lease:
No (renewable)
Free Rent:
None
Move In Conditions:
Pet consultation: small dogs allowed, cats allowed, 2 people allowed
Additional Costs Details
Deposit Deductions (if applicable)
Miscellaneous
Property Features
Bath And Toilet Separated
Toilet
Dish Washing Machine
Storage Space
Dryer In Bath Area
Washlet/bidet
Free Internet
Security Camera
Elevator
Delivery Box
Auto Lock Entrance
Features Additional Information
Parking Information
Available
No
Vacancy
No
Price
¥0
Owned
No
Available
No
Vacancy
No
Price
¥0
Owned
No
Available
Yes
Vacancy
Yes
Price
N/A
Owned
Yes
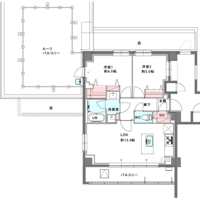
Balcony Area:
7m²
Window Direction:
Westwards
Estimated Utility Costs:
¥0/year
Special Notes:
24 Hour Ventilation System For Corner Rooms Where Trash Can Be Taken Out At All Times
Customer Stories
Read more stories on Google

Brad S
We had a great experience with AtHearth! Moving in Japan with limited language skills can be very stressful, but everything went really smoothly thanks to the staff at AtHearth. Everyone we worked with was super friendly and knowledgeable, and c...

June Cooper
AtHearth gave me a very positive experience, helping sort out all the stress of finding an apartment in Tokyo. I was fairly particular with my needs of a pet-friendly and sound-proofed apartment, but they were able to find a place within a few d...

Ho Tak Yu
As a foreigner who cannot speak and listen to Japanese like a local, AtHearth is your go-to agency when you need an apartment to settle. Be sure to get in touch with their team 2-3 weeks prior to your arrival to Japan so they can have a better p...

Ryan Hintzman
Working with Tomo and his team at AtHearth made my move to Tokyo so much less stressful and so much more successful than it would have been otherwise. I had good Japanese but had never lived in Japan before and had an unusual visa/salary situati...
Overall rating: ...
Based on 97+ reviews
Property Location
How far is the property from
Find how far this property is from your Office, School or any other place.
Other Rooms
|
13 Rooms
|
Similar Properties
|
7 Rooms
|